le PROJET DéCo '

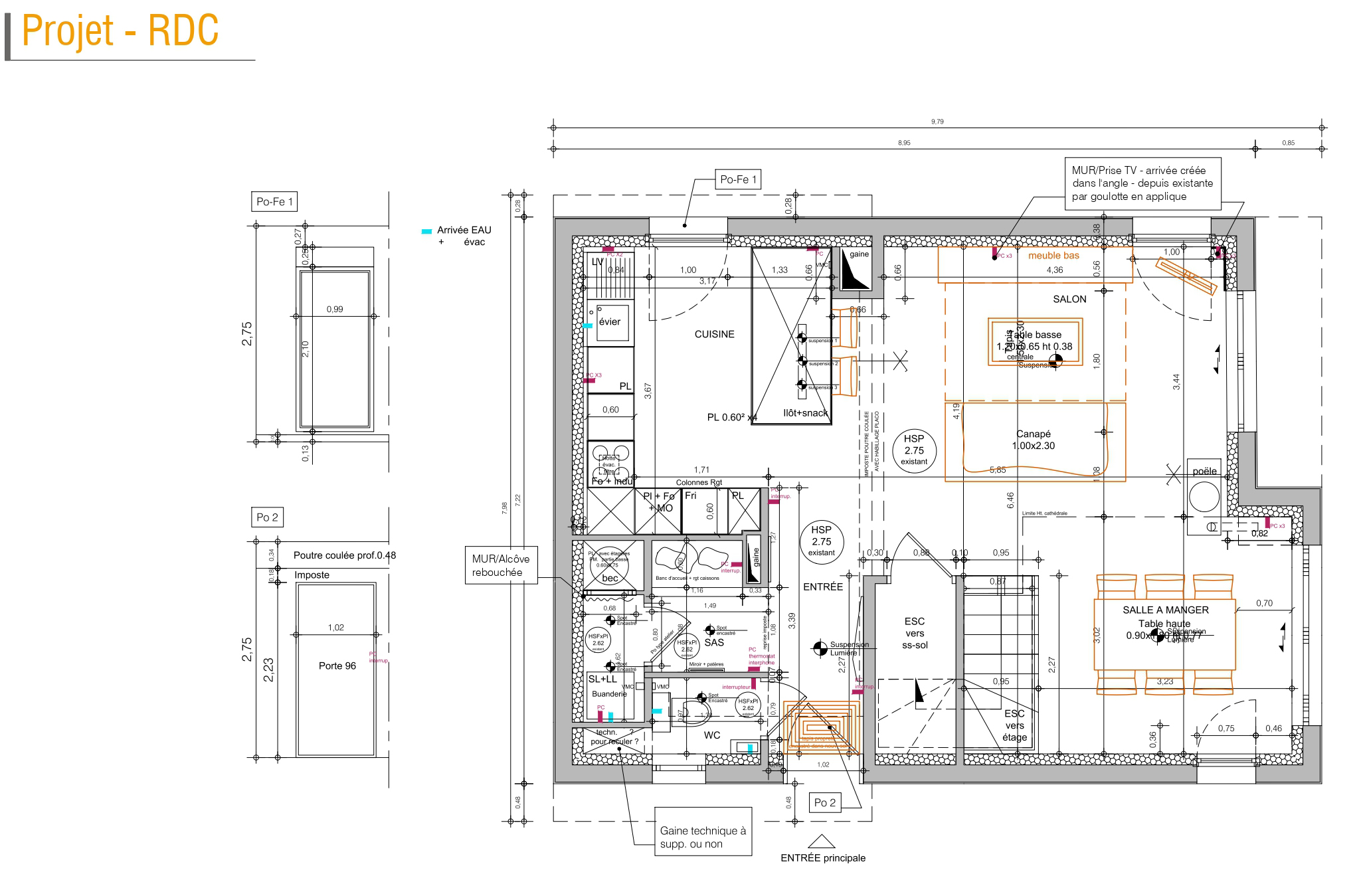
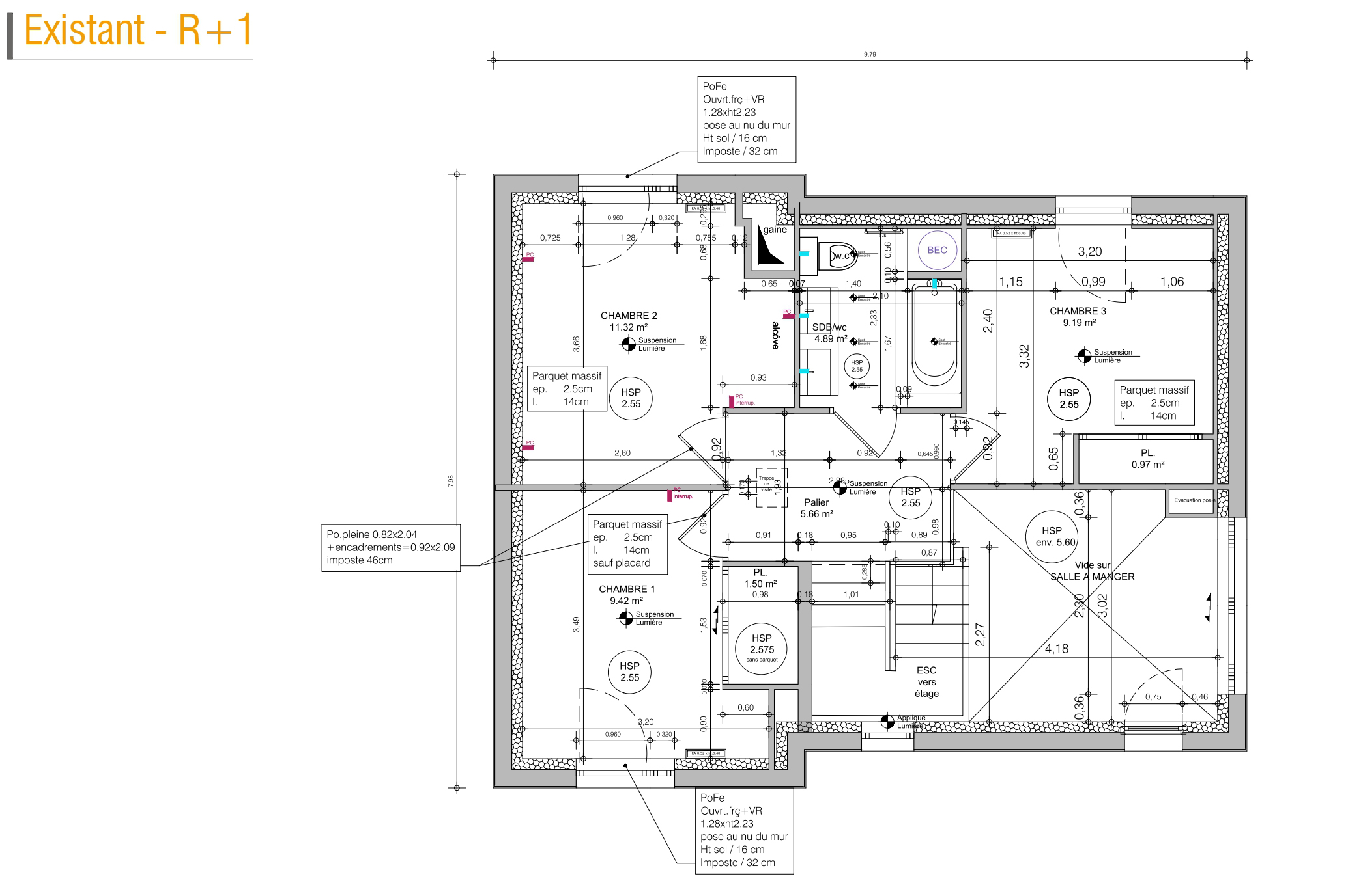
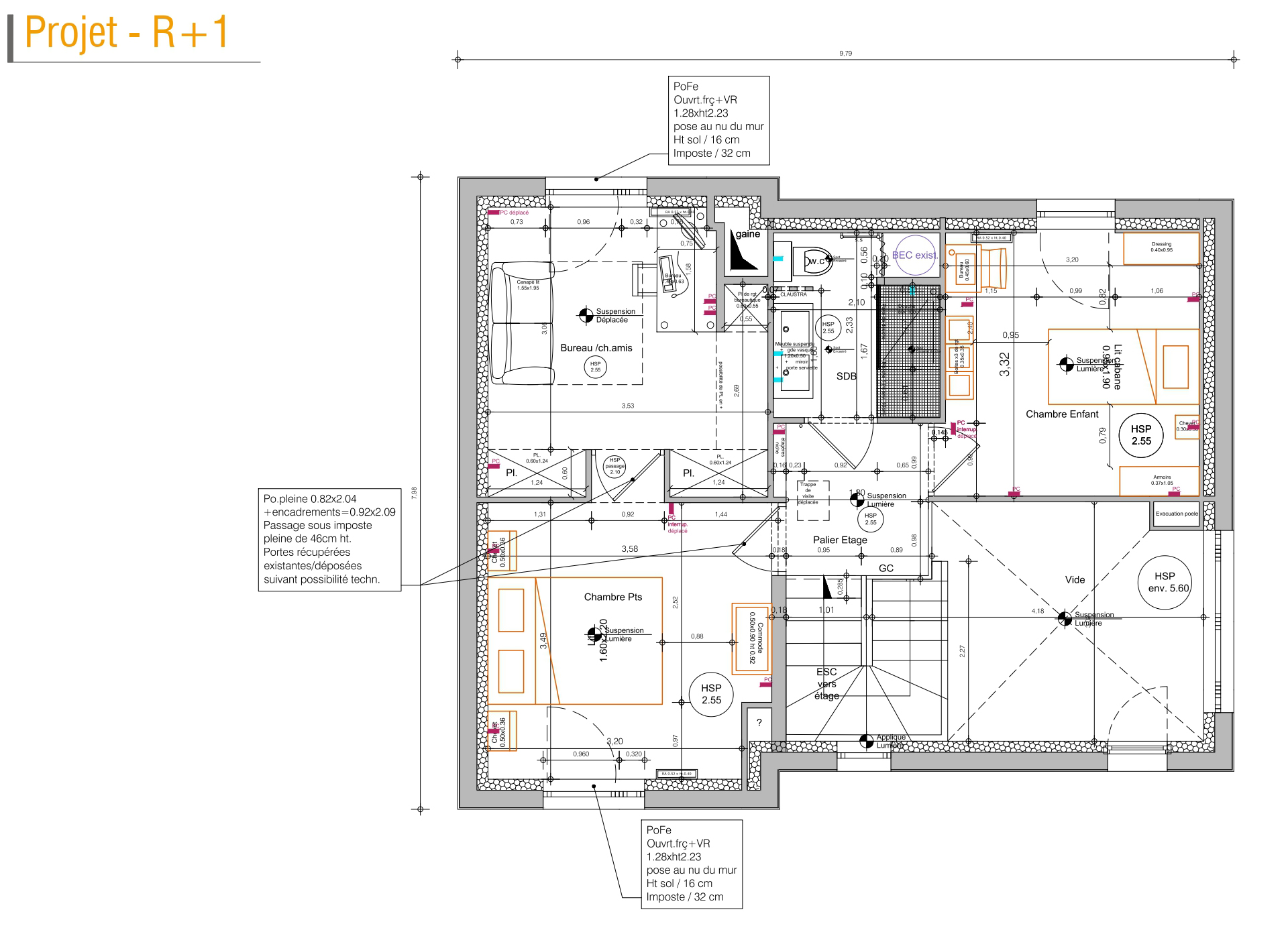
Le PROJET DéCo' ... Les clients ont sollicité mon aide à plusieurs reprises pour les accompagner dans leur recherche immobilière, dans le cadre de leur achat immobilier. Lors des RDV-Conseils, nous avons pu examiner les atouts, les contraintes et le potentiel possible (ou non) des biens lors de nos visites. Et ce jour est arrivé... le bien fût trouvé !!! Ils ont pu commencer à se projeter dans leur future maison ! La maison, son potentiel d'action et le budget étaient en accord avec leurs souhaits! Le carnet de décoration et de travaux a été rapidement mis en place, pour leur permettre de se projeter pleinement ! La maison se compose d'un RDC et d'un étage. Nous avons décidé de casser des cloisons, redistribuer les espaces, redéfinir les fonctions de chaque nouvelle pièce, étudier la circulation, la décoration, la lumière, les matériaux et les revêtements. En bref, le projet a été conçu sur mesure pour répondre aux demandes de mes clients et satisfaire leurs besoins ! Bien entendu, l'étude a pris en considération le mobilier existant de mes clients à remplacer. Oui, on déménage, mais on ne peut pas tout racheter !

Esquisse et carnet d'intentions pour l'aménagement et la décoration

No items found.

Réalisation ...

No items found.