le PROJET at HOME ' où le défi de la lumière

le PROJET at HOME ' ... Défi de la lumière ... Dans le cadre d' une déclaration de travaux (DP) obtenue, les clients souhaitaient revoir l'aménagement extérieur de leur maison et la rendre plus jolie et agréable à vivre. La maison devait impérativement retrouver son lien avec le jardin. Les vues sur cet écrin de verdure n'étaient pas assez exploitées pour que les clients profitent pleinement de son potentiel ! (zone de stationnement, accès, véranda, réfection d'une clôture vieillissante, reprise d'un vocabulaire architectural en façade, de l' aménagement d'une terrasse et d'une passerelle pour fluidifier les accès à la maison entre eux ...). ! Mais également revoir l'aménagement de l'espace RDC intérieur avec la reprise d'une salle d'eau, d'une cuisine, retrouver du rangement, une bibliothèque et une entrée qui était inexistante ! Aussi, le travail a été d'articuler l'ensemble de ces espaces entre eux pour faciliter le quotidien et se sentir bien dans son nouvel intérieur et dans son jardin . Il a fallu redonner de la lumière à cette maison par de multiples percements donnant sur le jardin, retrouver de la fonctionnalité et de l'harmonie intérieure tant dans les couleurs que les matériaux. De part leur propre expérience dans le sujet "travaux", les clients ont souhaité mener eux même les travaux en phase chantier. Ils m'ont donc sollicité tout naturellement pour effectuer l'ensemble de cette étude, qui a été menée graphiquement dans le détail, afin qu'ils puissent enfin réaliser ces changements tant désirés !

Etude sur l'aménagement extérieur ...

No items found.

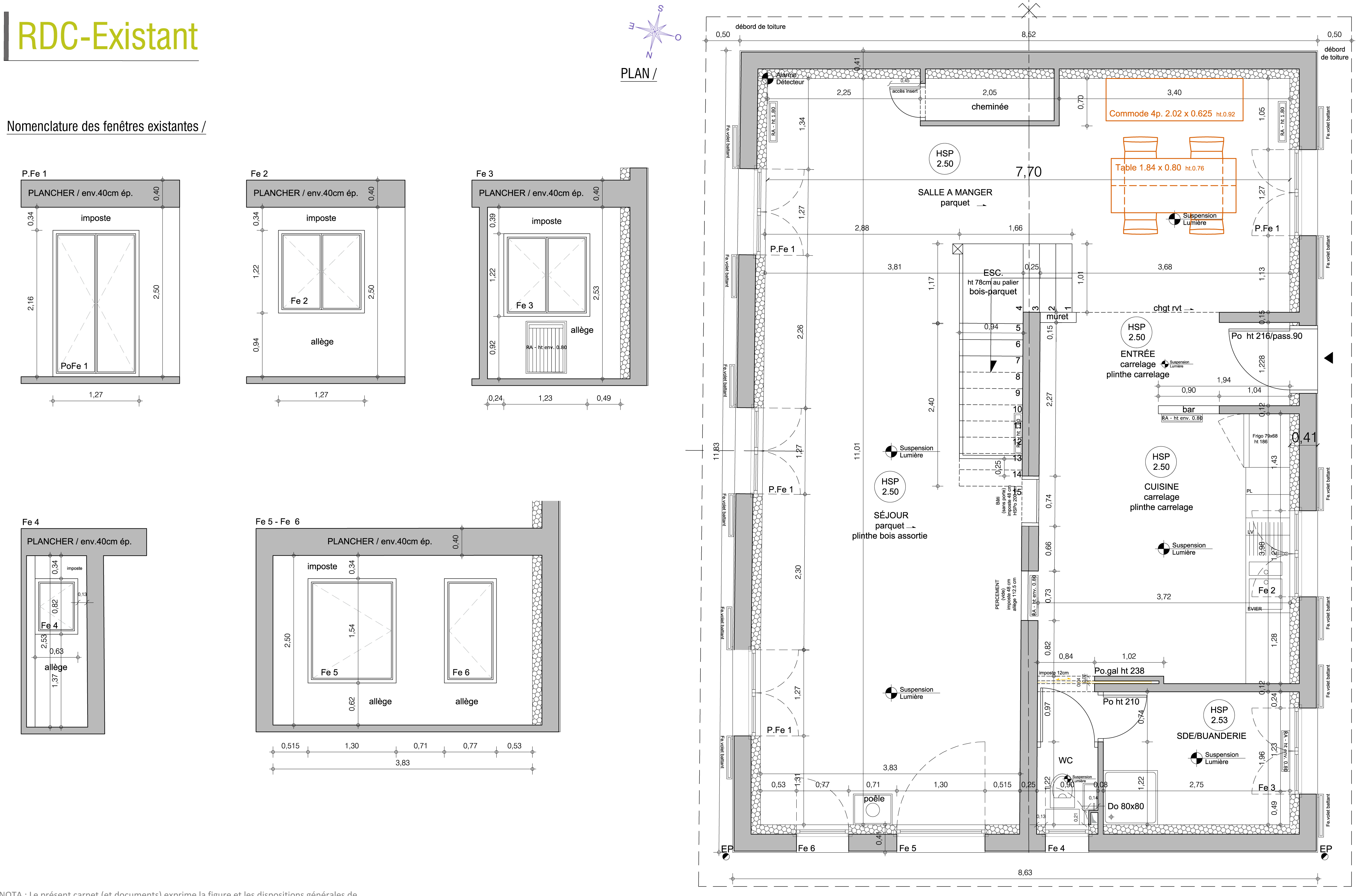
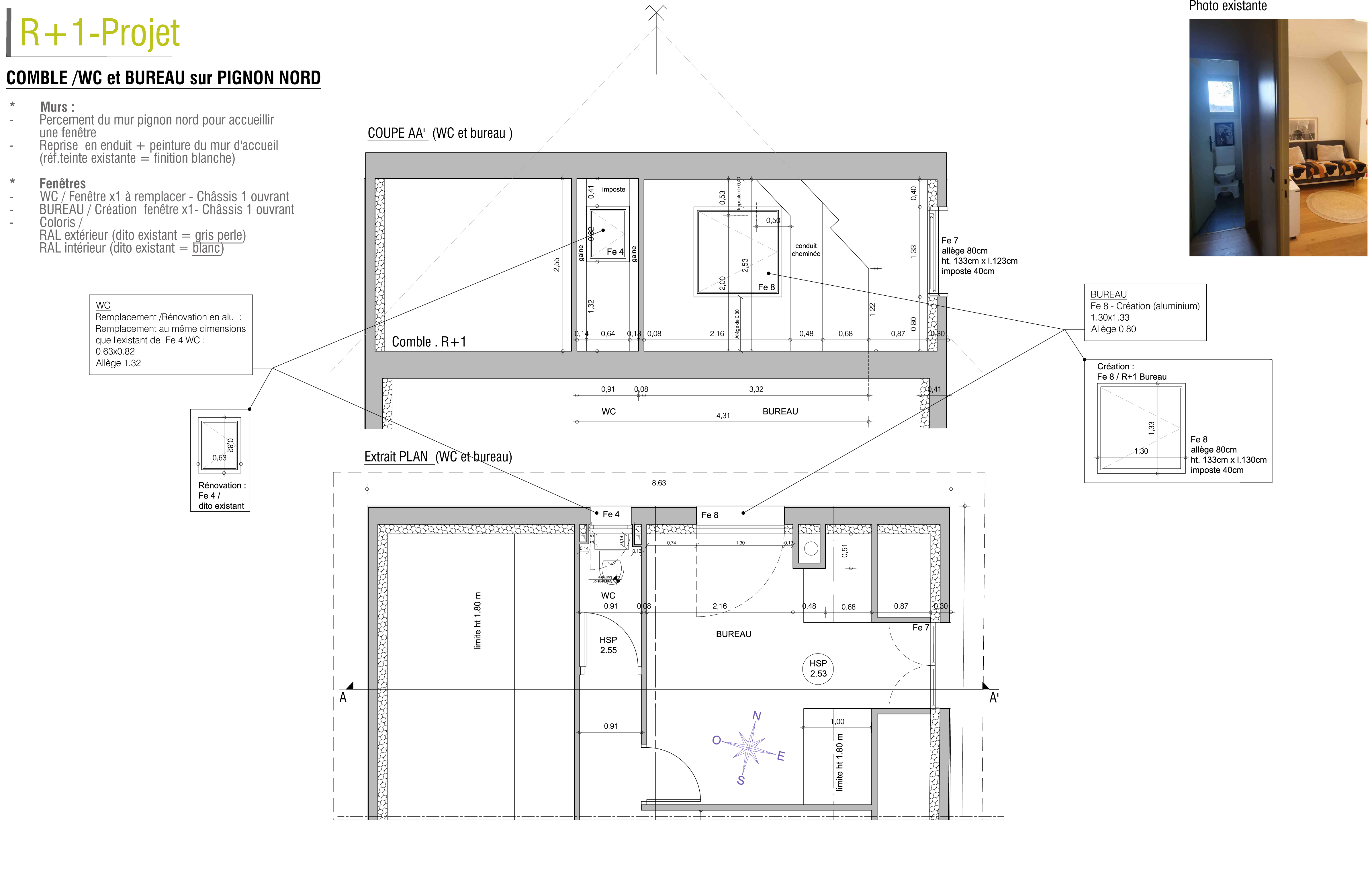
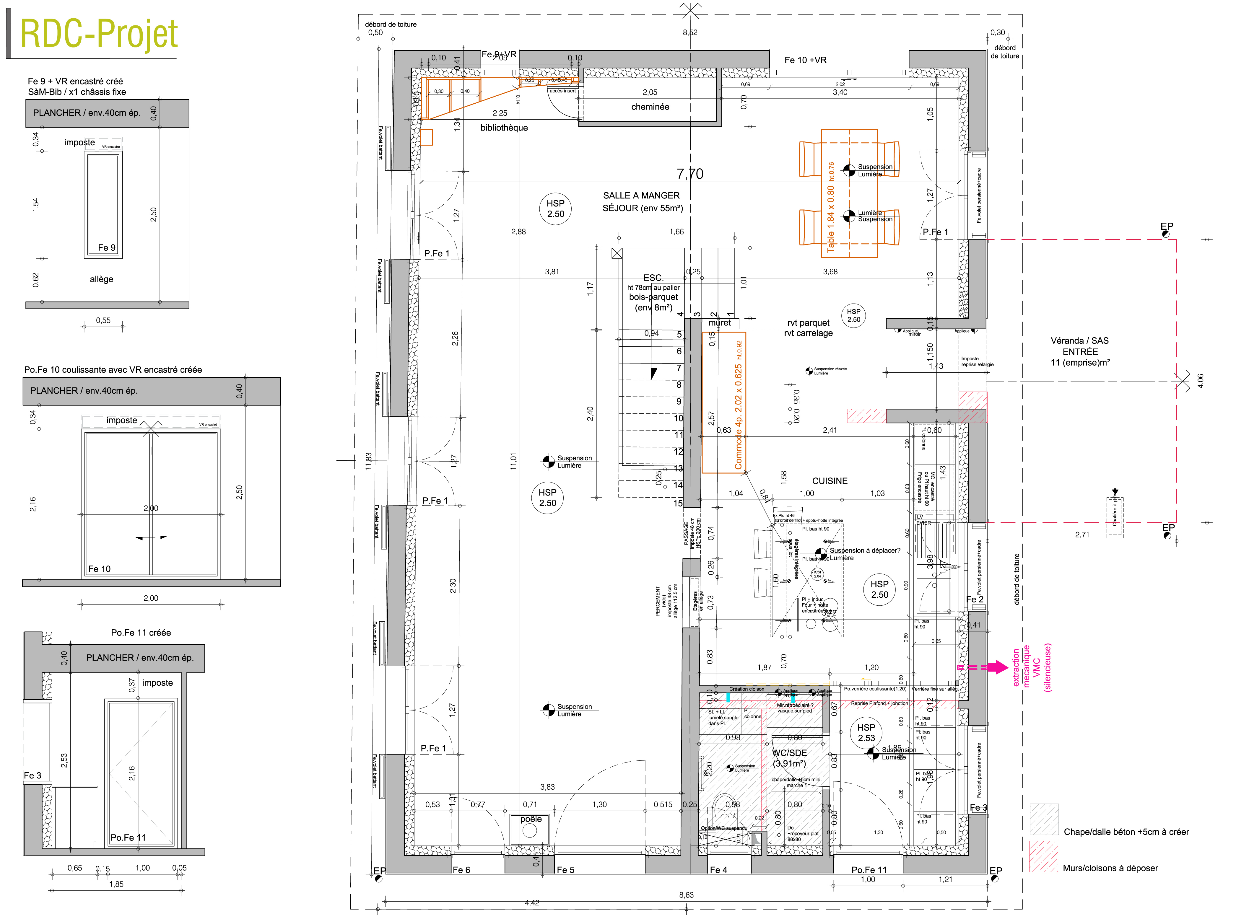
Etude sur l'aménagement intérieur ...

No items found.